Luxury Apartments
IN THE CENTER OF BERLIN
Tiergarten
Welcome to this bright and spacious one-bedroom-apartment in a fantastic location with a fully-equipped kitchen and a terrace with direct access to the garden. Next to the Master bedroom, there is a dressing room, a large living room and two bathrooms for your convenience. Overlooking Berlin’s famous Tiergarten, this apartment boasts meticulous design, made for comfort and glamor, with an air of elegance, creativity and space.
Floor plan of the Apartment (110 m²)

Esplanade
This magnificent, well-lit city apartment, centrally located in embassy quarter in Tiergarten, comes with a combined living room and kitchenette, 1 bathroom, and 1 bedroom, which connects directly to the spacious terrace, overlooking Berlin’s famous Tiergarten. This tastefully decorated apartment is designed in urban and modern tones and offers plenty of storage room.
Floor plan of the Apartment (60 m²)

Rosa Luxemburg
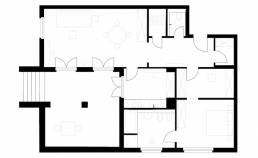
Welcome to this spacious and bright, elegantly designed apartment on the top floor of our Luxeleven Hotel. Its 185 m² boast two bedrooms and two bathrooms, complete with a bathtub and a shower. The open space concept is flooded by daylight and combines living room, dining room, kitchen and a study. For dreamy views, the generous balcony / terrace offers the perfect mix of comfortability and urban landscape.
Floor plan of the Apartment (185 m²)

Penthouse
May we present to you: the Lux-Eleven 160m²-penthouse, with its own fireplace and sauna, will most certainly sweep you off your feet. It is contemporary and spacious in its design, combining luxury and urban visions to create a perfect getaway in the German capital.
Located at the top of the 19th century building our Penthouse is a quiet and serene retreat, a personal safe haven from the busy streets below.
And on top of everything else, you have access to your own rooftop terrace, serving amazing daily views, overlooking Berlin’s iconic TV Tower. It just doesn’t get more “Berlin” than this!
Floor plan of the Penthouse (160 m²)





































